Logo Kutschke Immobilien GmbH

Laden/Büroeinheit in Bautzen

  • Objekt-Nr.5860
  • Zimmer1
  • Gesamtfläche43,0 m²

Beschreibung der Ausstattung

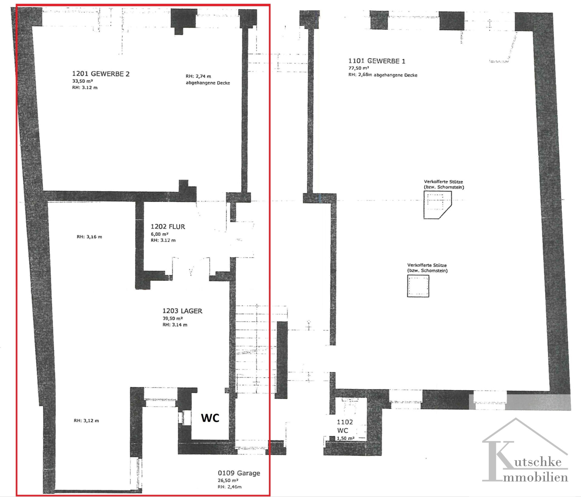
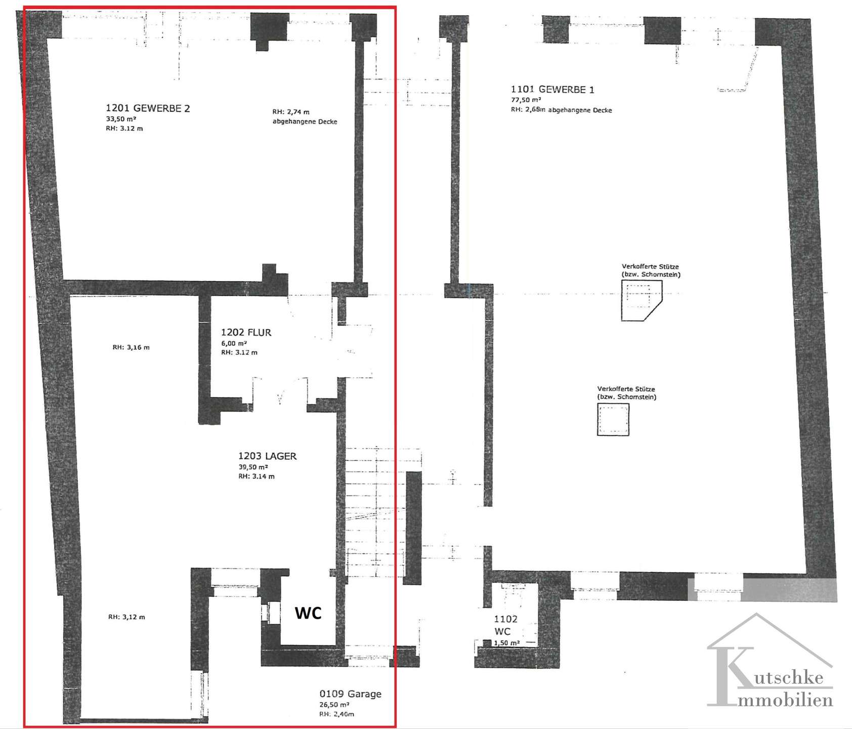
EG in denkmalgesch. Wohn- und Geschäftshaus

bezugsfertige Gewerbeeinheit mit 2 Schaufenstern

Flur, sep. WC, Lager (ca. 45 m²)

Miete und NK zzgl. gesetzl. MwSt.
-----------------------------------------------------

Lage

Die Gewerbeflächen befinden sich im Stadtzentrum von Bautzen, einer charmanten Stadt in Sachsen, Deutschland. Der Stadtteil zeichnet sich durch seine historische Altstadt mit Fachwerkhäusern, gemütlichen Cafés und kleinen Geschäften aus. In unmittelbarer Nähe befinden sich verschiedene Restaurants, Banken und Einkaufsmöglichkeiten, die eine hohe Kundenfrequenz garantieren.

Bautzen selbst ist eine mittelalterliche Stadt mit einer reichen Geschichte und einer lebendigen Kulturszene. Die Altstadt wird von der imposanten Burg Alatrava dominiert, die eine beeindruckende Aussicht über die gesamte Stadt bietet. Die Stadt bietet auch zahlreiche kulturelle Veranstaltungen, wie das alljährliche Altstadtfest und Theateraufführungen im Staatstheater.

Die Region um Bautzen ist geprägt von malerischen Landschaften, die sich ideal für Outdoor-Aktivitäten wie Wandern, Radfahren und Kanufahren eignen. Die Nähe zur Lausitz und dem Bautzener Stausee bietet zudem Möglichkeiten zur Erholung und Entspannung in der Natur. Insgesamt bildet die Region eine attraktive Mischung aus Geschichte, Kultur und Natur, die sowohl Bewohner als auch Besucher gleichermaßen begeistert.

Objektbeschreibung

Diese denkmalgeschützten Gewerbeflächen wurden im Jahr 1896 errichtet und befinden sich in einem gepflegten Gebäude mit einer zentralen Heizungsanlage. Die Immobilie befindet sich auf der Erdgeschossebene und bietet vielfältige Möglichkeiten für gewerbliche Nutzung.

Die Gewerbeflächen umfassen insgesamt ein Zimmer, das individuell gestaltet werden kann, um den Bedürfnissen des zukünftigen Mieters gerecht zu werden. Hohe Decken und große Fenster sorgen für eine helle und einladende Atmosphäre, die ideal für verschiedene Arten von Geschäften oder Büros geeignet ist.

Zusätzlich punktet die Immobilie mit ihrer zentralen Lage, die eine gute Erreichbarkeit und Sichtbarkeit garantiert. Parkmöglichkeiten sind in der Umgebung vorhanden, was für Kunden und Mitarbeiter gleichermaßen praktisch ist. Nutzen Sie diese einzigartige Gelegenheit, um Ihre Geschäftsidee in diesen charmanten und historischen Räumlichkeiten umzusetzen.

PLZ02625
OrtBautzen
NutzungsartGewerbe
ObjektartBüro/Praxen
Baujahr1896
Gesamtfläche43,0 m²
Zimmer1
Allgemein
  • dv_verkabelung
Heizungsart
  • Zentralheizung
Befeuerung
  • Gas
Boden
  • Kunststoffboden
PrimärenergieträgerErdgas schwer
Jahrgangnicht nötig
*) Pflichtfelder